Building his own camper has been Steve’s dream long before we met and after many months of conceptualizing and more months of design work, building has commenced.
Our travels up until now were in our current rig, a 2004 4×4 Diesel Ford F350 + 2000 Lance Camper 1130. The current rig is also known as the test bed. The travels to date allowed us to not only work out the kinks in the franken truck but also the electrical system. We worked out our roles, our rules, and made living adjustments to smooth out living together in small, close quarters yet give each other personal space along the way. Even more importantly prove to ourselves, we desire and enjoy the roadtrip lifestyle together.
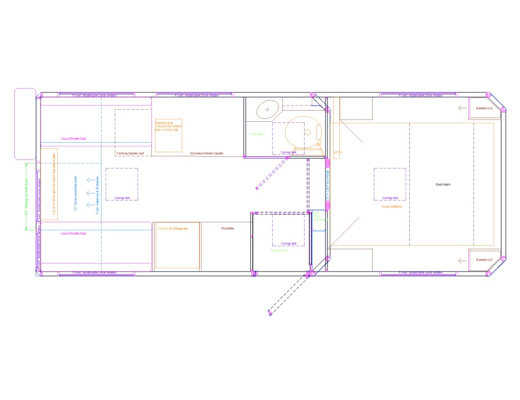
Key priorities for the custom camper:
Improve the off-road mobility of the truck and camper
- Improve the departure angle to 30 degrees
- Eliminating the long, low, rear overhang of the ‘slide-in’ camper.
- Move the spare tire from behind the rear axle/below the cargo box to the back wall of the habitat.
- Move the main access door to the passenger side in front of the rear wheel.
- Convert the fixed rear bumper and tow receiver to a higher, adjustable one.
- Permanently mount the habitat to the truck frame on a 3 point, flexible mount that allows the truck frame to twist freely without stressing the habitat.
- Lower the overall weight and center of gravity of the camper.
- Shift equipment/services (waste tanks, refrigerator, battery, etc.) to floor level or below and forward of the rear axle.
- Replace the roof AC with a split system AC that is lower and forward.
- Eliminate the AC generator.
- Eliminate the propane storage system in favor of onboard diesel.
- Reduce overall height and roof projections that can catch on ‘things’

Improve accessibility/space utilization by eliminating the truck’s cargo body
- Regain load capacity lost due to the weight of the truck’s cargo body.
- Increase floor space from ~4’x11.3’ to 7.5’ x 12’.
- Expand external storage space with 4, below floor-level compartments.
- Increase seating space with a 2 seat dinette/couch ~2x truck camper space.
- Separate the bathroom and shower and place them forward.
- Create a lockable pass-through from the habitat to the cab.
Simple/redundant/efficient/powerful utility systems
- Large electrical capacity + diesel for heating (no propane).
- Increase PV from 760w to 950w and protect panels inside recessed roof well.
- Three space heating sources; Electrical heat pump (mini-split AC system), hydronic heat system from diesel coolant heater or vehicle engine.
- Three charging sources; solar, dedicated engine alternator, shore power.
- Two hydronic heating sources; diesel coolant heater, vehicle engine.
- Four through-ceiling vent fans.
- DC electric, super insulated refrigerator (8x more efficient than RV 3-way).
- No built-in range/oven. Portable induction plate, ‘insta-pot’ and convection microwave.
Reduce/eliminate ‘liabilities of traditional RV construction/design
Drastically reduce envelope leak potential
- Virtually no seams requiring sealant.
- Eliminate all external storage access compartment doors into the living envelope.
- Exterior and interior of the envelope are continuous fiberglass.
- Seven large, fixed, double pane polycarbonate windows.


I am really enjoy following your camper build. I am in the process of designing my own for boondocking/fulltime living. A couple of questions. Do you know your dry weight with just the shell and the R-Value?
Thank you
Doug
LikeLike
The shell, without doors (4) or internal walls (5), fender covers (2 each different in size) weighed 1600lbs. I used a crane scale and measured that (and it was not easy). The 7 glass/aluminum windows weighed just short of 200 lbs. I wish I had decided to get the crane scale earlier and weigh each wall/floor component but didn’t. If I were to guess at the box with all doors, walls and windows, it is probably 2200-2400lbs.
The wall is made with 2″ poly-iso with 5mm plywood on both sides. The R-value of the insulation is 13.1 and the wood is (R-1 per inch) =.4 making 13.5 in the areas where only insulation exists. I have very little wood bridging in the wall to create a lower R-value but of the ~226″ length there are ~8-13/16 (6.5″) poplar ribs inside and at the ends of the walls that produce an R-value of ~2.4 in those areas. There is no aluminum in the side walls, but there are in the roof (2 pcs 2″ wide) ,floor 4 pcs 2″ wide and back wall 2 pcs 2″ wide, producing an R value of .4 (only from surface skins) in those areas. If that was all there was to the wall (no windows, the envelope would be ~R13. Since there ARE windows (7) and they are double pane glass with aluminum frames, I estimate their R value at ~4. There are also 4-14×14 roof vents with a similar R-value. This might bring the whole envelope down to R-11 or so but I have not exactly calculated it (need to do a surface area vs R-value for each area). Ball parking it is good enough for me.
LikeLike